 
        
        
      
    
    EDC, Technical Building
Client: East Durham College
Location: Durham
Service: Technical Design, 3D Visuals, Planning Documentation, Surveying, Design Co-ordination
Style: Industrial, Commercial
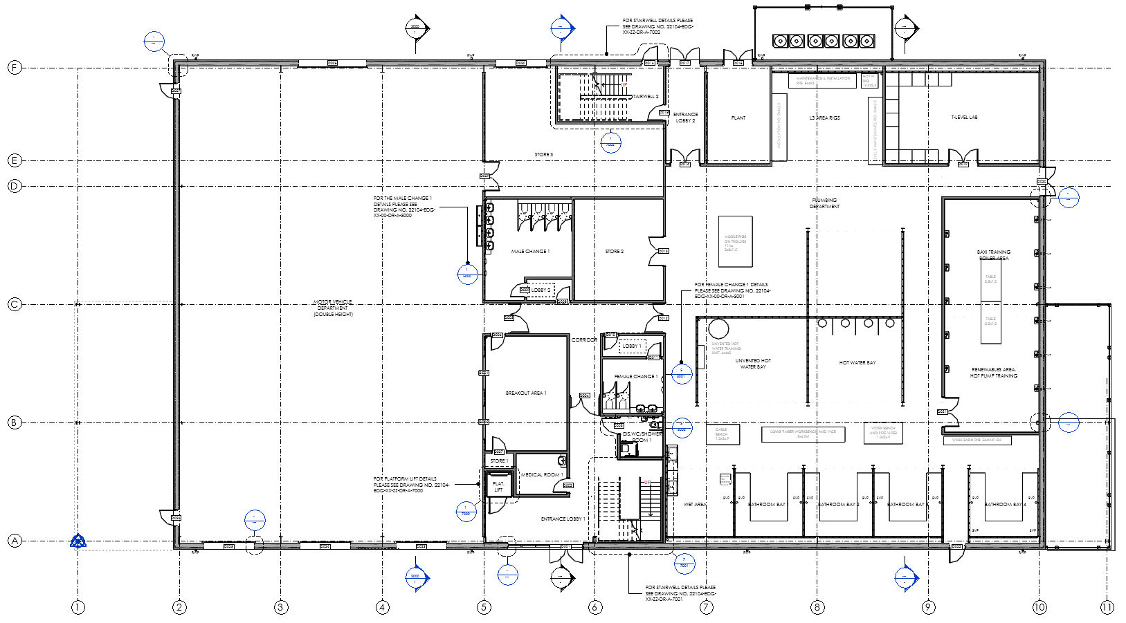
Envision Design Group were awarded the responsibility of designing a dynamic, functional space for this award winning educational institution.
With a wide range of courses and programmes on offer and a growing student base, East
Durham College wanted to create a tailor-made facility to accommodate specialty classes in subjects like Automotive and electrical engineering, gas, heating and plumbing. Working closely with the college, Envision crafted a multi-purpose building with attention to detail in mind.
The specification of wall build ups, finishes and layouts were fine-tuned to meet both the client’s requirements and that of the cutting-edge systems and machinery housed by the new technical academy. Thermal efficiency and sustainability were also fully considered and integral to the building’s overall design.
 
                         
            
              
            
            
          
               
            
              
            
            
          
               
            
              
            
            
          
              